AWAJI MARE
極上のくつろぎを演出する ウォーターフロントの豪華な邸宅
極上のくつろぎを演出する ウォーターフロントの豪華な邸宅
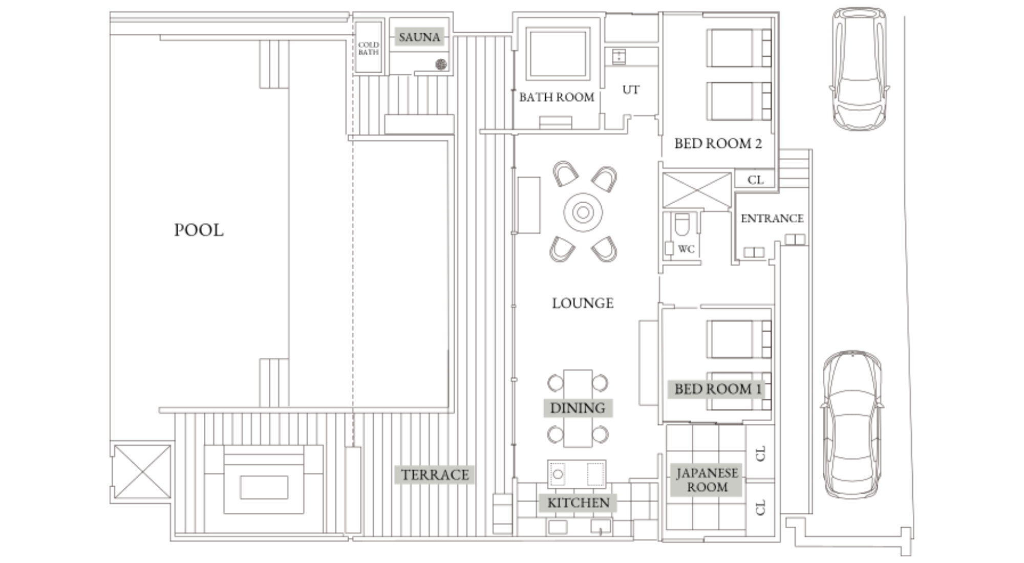
敷地面積 494.10㎡
床面積 191.90㎡
駐車場 2台
定員 6名
ROOM


建築と空間の調和を生み出すインテリア。デザイン性だけでなく、実用性と快適性を兼ね備えた飽きのこない欧州ブランド「Arflex アルフレックス」の家具でコーディネートしています。
また、美しさと魅力が増す「経年美化」の心地よさにも注目。
無垢材を使用した建築は、年月の経過とともに味わいが深まり、風合いを感じていただけます。本物の素材に宿る美しさと心地よさを感じてください。
Pool & Terrace


ブラックを基調としたタイルやウッドデッキでLuxuryな雰囲気を漂わせるPool & Terrace。海につながっているように見える傾斜で、海と一体化したかのような感覚に。
Kitchen


最新家電を揃えているので、「気になっていた」「使ってみたかった!」家電を使って、つい料理をしたくなってしまうかも。
設備:IHキッチン / 無煙ロースター/ ドリンクバー / コーヒーメーカー冷蔵庫 / ワインセラー / 食器類(各種グラス)/ 調理器具 / 調理家電
Bath & Sauna


洞窟をイメージした浴室で、体の芯から癒されるバスタイムを。ゆったり広々と体を伸ばして、疲れを癒してください。また、プライベートサウナでは、海の絶景とサウナアロマの香りに包まれて、リフレッシュ。
Bath Room Facility & Amenity


シャワーヘッドやドライヤーは人気のブランドReFa。
設備:バスルーム(天然温泉)/ 化粧洗面台 / 温水洗浄付きトイレ / サウナ / 水風呂 / バスタオル / フェイスタオル / ドライヤー / パジャマ(フリーサイズ)
アメニティ:シャンプー/コンディショナー/ボディソープ/メイク落とし/洗顔フォーム/化粧水/乳液/美容液/ヘアブラシ/レディースセット(コットン、綿棒、ヘアゴム)/シェービング/ジェル
Bed Room and Others


さざ波の音に耳を澄ませて心が癒されたら、日ごろの疲れをほぐす寝室へ。ベッドのほか、布団もあるので好みの寝具を選べます。複数の寝室があるので、友人家族や親戚との旅行でも心置きなく過ごせます。
設備:ベッドルーム×2(各セミダブルベッド2台)/ 液晶テレビ60型 / 畳の間(布団4組)/ 電動開閉カーテン / 加湿空気清浄機 / エアコン/ Free Wi-Fi / インフィニティプール / アウトドアリビング / 屋外BBQガスグリル
※インフィニティプール:室外プールの水温は季節により変動します。